Ecole Saint-Vincent-de-Paul - Atelier de sensibilisation au risque inondation et au fonctionnement de l'école refuge
| Rappel du contexte | Au cours de l’année 2018, l’équipe menée par AEI a élaboré un schéma directeur des zones refuges en concertation avec les quatre communes de la presqu’île d’Ambès. Dans ce cadre, l’école de Saint-Vincent-de-Paul a été identifiée comme une zone refuge de proximité pour accueillir des populations dites vulnérables en cas d’inondation. L’extension de l’école a été inaugurée en février 2019, marquant une première en France qui aura valeur d’exemple pour d’autres communes soumises au risque d’inondation. |
| Objectifs de l’atelier | Les personnels de l’école sont les premiers concernés et doivent être les premiers destinataires de l’information sur le fonctionnement de la zone refuge. L’ATELIER s’inscrit donc dans une démarche de sensibilisation des usagers et personnels de l’école en premier lieu, avec la perspective de s’adresser aux élèves et parents d’élèves, au travers d’activités pédagogiques et d’ateliers, en partenariat avec la Mairie de Saint-Vincent. Ce premier atelier de sensibilisation répond à trois objectifs :
|
| Quels sont les risques en présence ? | Il existe trois grandes catégories de risques : les risques naturels (inondations, tempêtes...) ; les risques technologiques (accidents industriels, transport de matières dangereuses...) et les risques dits particuliers (catastrophes sanitaires, terrorisme...). À la différence des autres, le risque d’inondation est connu, récurrent et prévisible. À ce titre, les services de l’État, la Métropole et la commune travaillent de concert pour anticiper les événements et gérer la crise. |
Quels sont les moyens d’alerte? |
Plusieurs moyens d’alerte sont mobilisés au moins 24 heures avant l’inondation selon l’importance du risque : appels téléphoniques en masse, diffusion par haut-parleur, sirène, porte à porte auprès des personnes les plus vulnérables. |
| En fonction de la montée des eaux, il existe un seuil de vigilance pour les crues mineures et quatre seuils d’alerte pour des débordements plus importants jusqu’au risque de crue majeure. Le Préfet n’est pas le seul à décider du déclenchement des plans d’alerte. Le maire peut de son propre chef décider de l’activation du PCS de sa commune ; il en informe le Préfet. Celui-ci activera alors l’utilisation de l’école en refuge. |
|
| Comment fonctionne et qui gère le refuge en cas d’inondation ? | L’école refuge est un des éléments d’une stratégie globale de mise à l’abri en cas d’alerte inondation. Elle est ouverte à tous en cas de crise et est principalement destinée aux personnes vulnérables n’ayant pas d’autres solutions de mise à l’abri. Elle est prévue pour accueillir les personnes le temps de l’inondation, sur une durée de quelques heures à une journée. Il est nécessaire de préciser le rôle des services municipaux avant, pendant et après et l’inondation, pour répondre à plusieurs questions intéressant directement les personnels de l’école. Avant l’inondation : Qui donne l’alerte et l’avis de fermeture de l’école ? Comment préparer l’école à sa fonction de refuge ? Comment prévenir les parents et quelles sont les consignes à donner ? Qui assure le rangement des classes et du matériel ? Quelle coordination avec les agents chargés de la mise en route du refuge (clés, matériel stocké, élément particulier à signaler...) ? Pendant l’inondation : Qui gère l’équipement et assure l’accueil du public ? Comment sont communiquées les informations à la population, aux parents d’élèves et à l’équipe enseignante ? Après l’inondation : Qui assure la remise en état et la remise en service des locaux ? Comment s’organise le nettoyage des locaux inondés ? Qui vérifie et assure la remise en route des réseaux ? Débriefing par le personnel en charge de la gestion de crise? Comment accueillir les enfants à la réouverture de l’école et tenir parents informés ? |
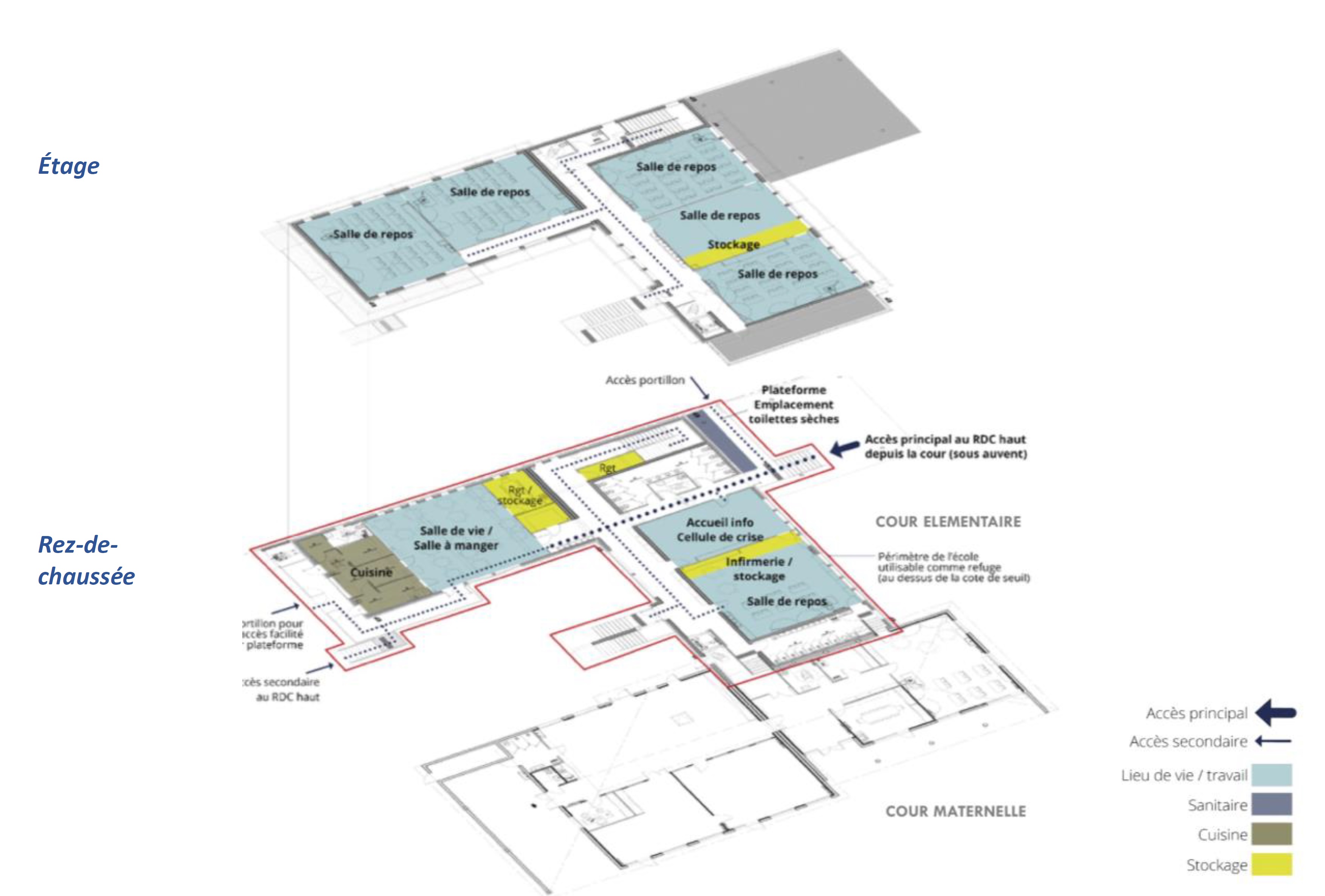
Les locaux de l’extension de l’école sont adaptés à deux schémas de fonctionnement et d’occupation des salles, en mode normal et en mode refuge.
L'école en mode normal
L’école en mode refuge
- Il est confirmé que la prise en main de l’école comme refuge est assurée par les services de la commune, et non par le personnel de l’école.
- Les modalités précises de basculement de l’école en mode refuge sont en cours de rédaction. Elles seront décrites dans une fiche action intégrée au plan communal de sauvegarde (PCS) actuellement en révision.
- Le personnel de l’école attire l’attention sur la gestion du niveau bas de l’école en cas d’inondation. Une réflexion sera à mettre en œuvre sur la résilience du niveau bas (résistance aux inondations, nettoyage et retour à la normale), ainsi que la réservation d’un local dans l’extension de l’école pour y stocker les affaires du niveau bas ou du matériel fragile ou sensible.
Comment sensibiliser les enfants ?
| Les enfants découvreurs et ambassadeurs | Le second temps d’atelier a été consacré à une discussion avec les enseignantes et les animateurs du centre de loisirs pour définir les contours d’un travail de sensibilisation des enfants. Il s’agit d’esquisser des propositions pour expérimenter dans les semaines à venir une ou plusieurs activités pédagogiques avec les enfants. Ce travail s’inscrit dans la philosophie des « enfants ambassadeurs » auprès de leurs parents et de leur entourage, à partir des principes appris à l’école. Tous les participants s’entendent sur la nécessité de proposer des activités interactives et ludiques. L’équipe enseignante précise qu’un matériel manipulable, comme une maquette sur laquelle on pourrait verser de l’eau, serait un plus pour capter l’attention des élèves. Il faut « donner à voir et à comprendre » à la manière d’une expérience de jeu avec l’eau. |
| Principe de reproductibilité |
Dans le cadre de sa mission, l’équipe AEI prévoit l’animation d’une demi- journée pédagogique avec les enseignantes. Les supports et le matériel fournis seront conçus pour être réutilisables, afin de pouvoir reproduire ou développer ces activités les années suivantes. |
| Adapter les supports aux classes d’âges |
Les activités proposées doivent s’inscrivent dans les cadres pédagogiques existants (éducation morale et civique, découverte du monde, géographie...) et être adaptés aux différents niveaux, à partir du cycle 2. Trois cibles sont identifiées :
|
| Quels objectifs pédagogiques ? |
Les acticités proposées peuvent croiser plusieurs entrée : « connaître son environnement », « expérimenter le parcours de l’eau », « adapter les bons comportements pour être en sécurité. Connaître son milieu à plusieurs échelles, se situer sur la carte... : à l’échelle de la presqu’île d’Ambès : le marais, les berges, les espaces naturels et agricoles, les villages... / à l’échelle de la commune / à l’échelle du quartier du voisinage proche (repérage des zones inondables). Comprendre comment se passe une inondation : les inondations passées, le phénomène combiné de grandes marées et de tempêtes : d’où arrive l’eau, comment elle se propage, comment elle s’évacue. Comprendre ce que l’on fait se protéger : se protéger avec une digue, ne pas construire dans les zoés à risques, construire en hauteur et surélever les habitations... Comprendre pourquoi et comment l’école devient un refuge : le rôle de « l’école qui se transforme » : à quel moment y aller ? Quelle salle sert à quoi ? En cas d’alerte, que faut-il faire ? Quels comportements à adopter? |
| Quels supports ? | Trois types de support sont évoqués avec l’équipe enseignante (à ces propositions, s’ajoutent un ensemble de supports pédagogiques existants qui pourraient être adaptés). UNE MAQUETTE INONDABLE : l’idée de maquette inondable peut illustrer le parcours de l’eau, et servir de support à expérience physique et ludique qui mobilise l’observation des enfants. Elle serait en outre à adaptée à tous les niveaux, en fonction des exercices associés. Il reste à déterminer la nature et l’échelle de cette maquette : Option 1 : le territoire de la presqu’île où les enfants peuvent étiqueter des lieux qu’ils connaissent ou qu’ils découvre. Option 2 : la commune et le centre bourg avec ses habitations et ses équipements. Option 3 : l’école elle-même. Option 4 : une maquette non figurative, à la manière d’un aquarium pour réaliser des expériences de laboratoire (maquette coupe, maquette maison...) À préciser en termes de faisabilité et plutôt à destination du cycle 3. UN JEU DE PLANS ET DE PHOTOGRAPHIES, envisagé comme support d’une activité pédagogique encadrée, essentiellement basée sur la connaissance des milieux et l’apprentissage du repérage géographique (en envisageant par exemple un grand plan à plusieurs couches montrant plusieurs étapes d’une inondation), plutôt à destination du cycle 2. UN JEU DE CARTE ÉDUCATIF ET PÉDAGOGIQUE, par exemple « Fais ta valise » (quoi emporter en cas de départ de sa maison pour une zone refuge ?) ou de type Mémory : relier des notions clés par association / jouer avec les changement d’usages dans les salles en mode école et en mode refuge / jouer avec les comportements à adopter... , plutôt à destination du centre de loisirs |
| Hypothèse d’organisation des activités |
Une activité avec les CM1/CM2 (28 élèves en tout) est envisageable sur une demi-journée avec deux groupes de 14 élèves mobilisables pour activité de 1h avec l’équipe AEI en appui aux enseignantes. Les activités avec les CP- CE1-CE2 sont à préciser. |
